

|
||||||||||||||||||||||||||||||||||||||||||||||||||||||||||||||||||||||||||||||||||||||||||||||||||||||||||||||||||||||||||||||||||||||||||||||||||||||||||||||||||||||||||||||||||||||||||||||||||||||||||||||||||||||||||||||||||||||||||||||||||||||||||||||||||||||||||||||||||||||||||||||||||||||||||||||||||||||||||||||||||||||||||||||||||||||||||||||||||||||||||||||||||||||||||||||||||||||||||||||||||||||||||||||||||||||||||||||||
|
產品介紹 一、Q947F電動固定法蘭球閥--產品概述: Q947F電動固定法蘭球閥采用固定式球閥與高精度電動執行器組裝而成,?適用于長輸管線和一般工業管線,其強度、安全性、耐惡劣環境性等在設計時進行了特殊考慮,適用于各種腐蝕性和非腐蝕性介質。Q947F電動固定法蘭球閥它與浮動球閥相比,工作時,閥前流體壓力在球體上產生的作用力全部傳遞給軸承,不會使球體向閥座移動,因而閥座不會承受過大的壓力,所以固定式球閥的 轉矩小、閥座變形小,密封性能穩定、使用壽命長,適用于高壓、大口徑場合,Q947F電動固定法蘭球閥主要在石油、天然氣、煤炭和礦石的開采、提煉加工和管道輸送系統中;化工產品、醫藥和食品生產中;水電、火電和核電的電力生產系統中;城市和工業企業的給排水、供熱、和供氣系統中;農田的排灌系統中;治金生產系統中等得到廣泛應用。 二、Q947F電動固定法蘭球閥--產品特點: 1、Q947F電動固定法蘭球閥采用固定球設計,相對運動部位均采用磨擦系數極小自潤滑材料,因而操作扭矩小,此外密封潤滑脂的長期密封,使得操作更加靈活。 2、電動固定法蘭球閥采用高平臺結構,ISO5211連接標準,能使安裝電/氣動執行器更為專業化。 3、電動固定法蘭球閥采用全通徑設計,流通阻力小。 4、金屬硬密封氣動固定式球閥采用雙向金屬可動密封結構,具有自動補償及自潔功能,密封性能優越。 5、Q947F電動固定法蘭球閥采用固定球設計,并增加了預緊力彈簧,使得球閥具有自動泄壓功能。 6、每個球閥都有兩個可動密封座,兩個方向都能密封,因而安裝時不須考慮介質的流向。 7、具有防火防靜電結構,在閥桿與閥體及閥桿與球體之間設置導電彈簧,避免靜電打火點燃易燃介質。確保系統安全。 8、耐火結構雙重保護,當萬一發生火災而使密封圈燒損時,球閥的各個密封部位均能形成金屬對金屬的硬密封結構。 9、自動泄壓結構,當滯留在閥門中腔的液體介質由于溫度升高而氣化,從而中腔壓力異常升高時,中腔介質能依靠本身的推力推動閥座而自動泄壓,從而確保閥門安全。 三、Q947F電動固定法蘭球閥主要配件材質:
四、Q947F電動固定法蘭球閥主要性能范圍:
五、Q947F電動固定法蘭球閥--技術參數:
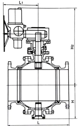
六、Q947F電動固定法蘭球閥--連接尺寸: ![]() PN1.6MPa下的電動固定球閥外形尺寸:
PN2.5MPa下的電動固定球閥外形尺寸
七、Q947F電動固定法蘭球閥日常保養工作: 1、閥門存放環境需注意,應存放在干燥通風的室內,且堵塞通路兩端。 2、閥門應定期檢查,并清除其上的污物,涂抹涂防銹油在其表面。 3、安裝應用后的閥門,應對其進行定期檢修,以確保其正常工作。 4、應查看閥門密封面是否磨損,并根據情況進行維修或更換。 5、檢查閥桿和閥桿螺母的梯形螺紋磨損情況、填料是否過時失效等,并進行必要的更換。 6、應對閥門的密封性能進行試驗,確保其性能。 7、運行中的Q947F電動固定法蘭球閥應完好,法蘭和支架上的螺栓齊全,螺紋無損,沒有松動現象。 8、如手輪丟失,應及時配齊,而不能夠用活扳手代替。 9、填料壓蓋不允許歪斜或無預緊間隙。 10、如果閥門使用環境較為惡劣,易受雨雪、灰塵、風沙等污物沾染,則應該為閥桿安裝保護罩。 11、閥門上的標尺應保持完整、準確、清晰,閥門的鉛封、蓋帽。 12、保溫夾套應無凹陷、裂紋。 13、運行中的閥門,避免對其敲打,或者支撐重物等。 八、Q947F電動固定法蘭球閥訂貨說明: 1、①產品名稱與型號②公稱直徑③閥體材質④公稱壓力⑤使用介質⑥連接方式⑦使用溫度⑧驅動方式⑨是否帶附件以便我們的為您正確選型。 2、如有特殊要求時請在訂購產品時注明 3、若已經由設計單位選定的型號,請按型號直接向我司銷售部訂購。 4、當使用的場合非常重要或環境比較復雜時,請您盡量提供設計圖。 | ||||||||||||||||||||||||||||||||||||||||||||||||||||||||||||||||||||||||||||||||||||||||||||||||||||||||||||||||||||||||||||||||||||||||||||||||||||||||||||||||||||||||||||||||||||||||||||||||||||||||||||||||||||||||||||||||||||||||||||||||||||||||||||||||||||||||||||||||||||||||||||||||||||||||||||||||||||||||||||||||||||||||||||||||||||||||||||||||||||||||||||||||||||||||||||||||||||||||||||||||||||||||||||||||||||||||||||||||
相關產品 |
||||||||||||||||||||||||||||||||||||||||||||||||||||||||||||||||||||||||||||||||||||||||||||||||||||||||||||||||||||||||||||||||||||||||||||||||||||||||||||||||||||||||||||||||||||||||||||||||||||||||||||||||||||||||||||||||||||||||||||||||||||||||||||||||||||||||||||||||||||||||||||||||||||||||||||||||||||||||||||||||||||||||||||||||||||||||||||||||||||||||||||||||||||||||||||||||||||||||||||||||||||||||||||||||||||||||||||||||